Šis projektas, kaip ir nekomercinis (arthouse) kinas, – ne kiekvienam. Jis skirtas mėgstantiems atviras erdves be griežtai nustatytų ribų. Kita vertus, atvirumas jaučiamas tik namo viduje, o išorinės sienos ir langai suprojektuoti taip, kad sukurtų gana uždaro pastato įspūdį ir apsaugotų gyventojus nuo nepageidaujamo pašaliečių dėmesio.
- Projektas: „Arthouse“ – sublokuotas (tributis) namas
- Autoriai: Aleksandras Pominčukas, Marina Pominčuk (studija „Pominchuk Architects“)
- Bendrasis plotas: 285 m² (3 but. × 95 m²)
- Pastatymo data: 2014–2015 m.
- Vieta: Charkovas, Ukraina
Pirminis užsakovo tikslas buvo nestandartinės gyvenamosios erdvės, skirtos drąsioms koncepcijoms ir eksperimentams. Idėjai įgyvendinti sklypo savininkas ieškojo architektų, kurių požiūris būtų kuo panašesnis į jo. Kai pagaliau sutiko Aleksandrą ir Mariną Pominčukus, suprato, kad šie jauni profesionalai pasiruošę Ukrainoje kurti progresyvią europinę architektūrą.
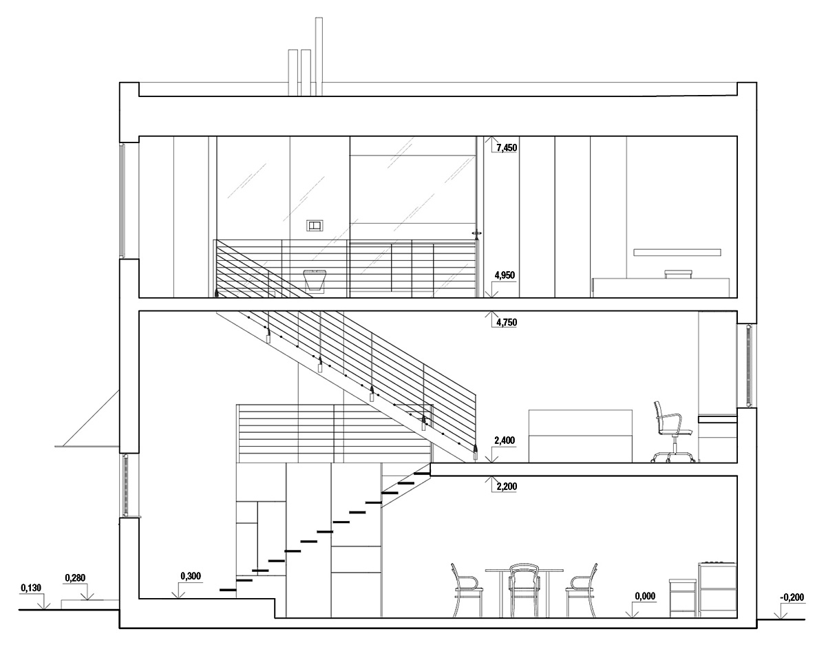
Projektas „Arthouse“ – pirmasis tokio tipo šios poros sukurtas objektas. Nedideli sklypo matmenys ir jau susiklosčiusi šioje vietoje miesto struktūra padiktavo sprendimą – blokuotą namą, kurį sudarytų trys gretimos sekcijos. Architektai tuos butus suformavo kaip kompaktiškus gyvenamuosius blokus, puikiai derančius su esamu užstatymu. Kiekvienas blokas išdėstytas keliais lygiais, kiekvienas jų skirtas vis kitam gyvenimo procesui, o visi tarpusavyje sujungti atvirais laiptais. Kad sumažėtų užstatymo plotas, suprojektuoti trys tokie pat blokai – namas tapo triaukštis.
Gyvenamąsias sekcijas architektai pastūmė viena kitos atžvilgiu ir langus išdėstė taip, kad kiekvieno buto vidiniai kiemeliai negalėtų būti stebimi smalsių kaimynų akių. Į šiuos kiemelius patenkama per virtuvę, sujungtą su valgomuoju. Prie namo esančiuose žemės lopinėliuose numatytos tik poilsio zonos, o automobilius gyventojai stato teritorijos gale, bendroje aikštelėje.
Ramios linijos ir daug natūralios šviesos palyginti nedidelio ploto būstą priartina prie svajonės apie plačias erdves, nevaržančias gyventojų laisvės.
Tokia netradicinė gyvenamojo namo schema lėmė ir kiekvieno bloko interjerą. Atvira, saulės spinduliuose besimaudanti gyvenamoji erdvė čia svarbesnė už spalvą, faktūrą ar kitas dekoratyvines priemones. Apsispręsdami dėl vieno iš blokų interjero stiliaus, kūrėjai apsistojo ties savotiška Viduržemio jūros regiono interjerų atmaina, kuriai būdingi visi bruožai, padedantys išlaikyti sėkmingą erdvės švarumo ir teigiamų pastato teikiamų emocijų pusiausvyrą. Tokiu būdu architektai pasiekė kompromisą tarp emocingos ir aktyvios šio būsto savininkės poreikių ir jo erdvės architektūrinių sprendimų.

Pradinis sumanymas ir savitumai
Nuo apačios iki viršaus žvilgsniu perrėžiami butai nėra skirti didelėms šeimoms. Planuota, kad juose gyvens vienas ar pora žmonių.
Kiekvienas butas sukurtas taip, kad būtų pakankamai erdvus, šviesus ir patogus. Pirmo aukšto plotas – apie 30 m², tik antrame aukšte jis šiek tiek mažesnis dėl laiptų aikštelės. Taigi kiekvienas nedidelis butas yra apie 90 m² ploto, o visas trijų butų namo plotas sudaro maždaug 285 kvadratinius metrus.
Pagal pirminį projektą pirmas buto aukštas skiriamas virtuvei su valgomuoju, prie kurių įrengiama svečiams skirta higienos patalpa, antrajame aukšte planuojama svetainė, trečiajame – miegamasis. Bet viename iš blokų architektai sukūrė savitą dizainą.
Šį bloką įsigijo verslininkė, pas kurią kartkartėmis planuoja svečiuotis jos duktė studentė. Todėl antro aukšto svetainės dizaineriai nusprendė atsisakyti, vietoj jos įrengė papildomą miegamąjį dukrai su visaverte lova ir mokymosi kampeliu. Įprastasis pirmo ir antro aukštų planas dėl to nepakito. Pirmajame liko virtuvė su valgomuoju, dideliu apskritu pietų stalu. Visą trečiąjį aukštą užima šeimininkės miegamasis ir erdvus vonios kambarys, įkurdintas stikliniame kube. Patogumo dėlei šias permatomas sienas galima uždengti užuolaida.

Konstrukcijos ir medžiagos
Namo sienoms panaudotos lengvos plieninės konstrukcijos. Tai cinkuoto metalo karkasas, užpildytas šiltinamąja medžiaga (mineraline vata) ir iš abiejų pusių apsiūtas apdailos plokštėmis. Vidaus apdailai naudotas gipskartonis, o iš išorės pastatas apdailintas profiliuotu metalu ir pušiniais tašeliais, sudarančiais originalų asimetrinį ažūrinį ornamentą.
Pastato viduje įrengti lakoniškos formos laiptai pagaminti iš metalo, be kliūčių praleidžiančio saulės šviesą, – laiptų konstrukcija atrodo labai lengva, bet išlieka tvirta. O štai jų pakopos pagamintos iš šiltos ir malonios paliesti medienos, gerai sugeriančios žingsnių keliamą triukšmą.
Pirmo aukšto grindis dizaineriai padengė atsparia viniline danga kamštiniu pagrindu, miegamuosiuose paklojo ąžuolinį parketą. Sienos ir lubos nudažytos baltai – šviesus interjeras tik pabrėžia erdvių atvirumo ir lengvumo koncepciją, kuria pagrįstas visas projektas.



















