Nedidelio naujos statybos buto Vilniuje, Žirmūnų mikrorajone, savininkė – Rusijos pilietė. Į dizainerius ji kreipėsi turėdama labai apibrėžtą tikslą: įrengti 60 kv. m dviejų kambarių butą nuomai, kuriame gyventų vienas žmogus arba pora be vaikų.

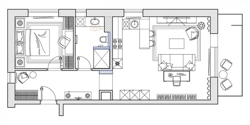
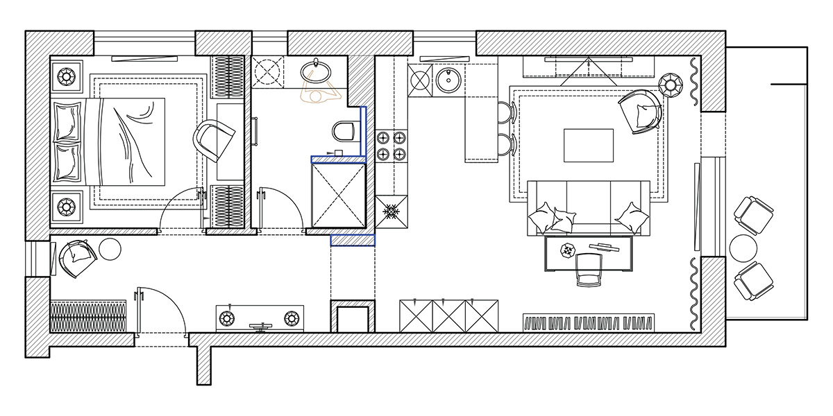
Užsakovė nenorėjo smarkiai kištis į patalpų planą, juolab kad jis gana patogus: įėjus patenkama į erdvų holą, įrengtas nedidelis, bet labai jaukus miegamasis, kiek tolėliau – sanitarinis mazgas. Buto gale paslaugiai erdvę siūlo 30 kv. metrų svetainė. O iš ilgo balkono atsiveria puikūs vaizdai į Neries pakrantę.
Dizainerės Tatjana Mirošničenko ir Olga Kondratova („Olga’s studio“) įgyvendino jau ne pirmą šios klientės užsakymą, tad nuo pat bendradarbiavimo pradžios tarp jų susiklostė idealus tarpusavio supratimas. „Mes kuriame interjerus, linkstančius į jaukų 8-ojo dešimtmečio modernizmą, – pasakojo T. Mirošničenko, – jie šiek tiek skiriasi nuo taip Lietuvoje paplitusio skandinaviško paprastumo. Su užsakove mūsų skoniai kone visiškai sutampa“.

Interjero sprendimus lėmė du veiksniai: užsakovės siekis įrengti butą nebrangiai ir universaliai, kad atitiktų daugumos būsto besidairančių žmonių skonį, ir jos polinkis rinktis lakoniškus IKEA dizainerių darbus. IKEA baldai nebrangūs, patogūs, tinka prie daugumos interjerų, tačiau turi ir vieną trūkumą: yra standartinių matmenų, o nedidelėse patalpose, kur svarbus kiekvienas centimetras, tai kartais gali tapti problema.
Siekdamos maksimaliai išnaudoti buto erdvę, „Olga’s studio“ dizainerės centimetrų klausimą išsprendė korpusiniais baldais, pagamintais pagal individualų užsakymą. Tokie yra virtuvės baldai, kuriuos baldininkas kruopščiai atitaikė pagal IKEA stilių, miegamojo spintos bei tualetinis staliukas, svetainės sieninė spinta.
Didžiausia – svetainės erdvė – suskirstyta net į tris funkcines zonas, juolab kad tai padaryti leido du dideli, natūralų apšvietimą teikiantys langai. Tik įėjus kairėje atsiveria valgio ruošos zona, kurią nuo poilsio zonos skiria baldinė „sala“, atliekanti ir pusbario, ir valgomojo stalo funkciją. Poilsio kampe – sofa, krėslas, žurnalinis staliukas ir televizorius. Čia jau – IKEA baldų karalystė!

Sofos nugarėlė žymi ribą tarp poilsio ir darbo zonų. Pastarojoje – rašomasis stalas, prie kurio dirbant netrūksta pro langą srūvančios dienos šviesos, kurią vakarop pakeičia stalinės lempos šviesa. Prie sienos rasta vietos talpiam stelažui. Kad būtų patogu dirbti, elektros maitinimo laidas po grindų danga eina tiesiai link darbo vietos. Čia tiesiog grindyse įrengtas elektros lizdas, į betoną įgilintas taip, kad virš dangos išsikišęs būtų tik poros milimetrų aukščio rėmelis.

11,2 kv. m miegamajame išnaudotas kiekvienas centimetras. Palei 3,16 m ilgio sieną įmontuotas tualetinis staliukas, o abipus jo – simetrinės drabužių spintos. Pastarųjų matmenys šiek tiek mažesni nei standartinių spintų, bet kruopščiai parinkti, kad kuo geriau būtų galima išnaudoti liekančią erdvę už atveriamų miegamojo durų, o viduje liktų daug vietos kabinamiems rūbams ir daiktams lentynose. Po tualetiniu staliuku telpa įstumiamas pufas.

Daugiausia dėmesio ir pastangų pareikalavo 6 kv. metrų sanitarinis mazgas. Čia tilpo visa reikiama higienos įranga, atsirado vietos net skalbyklei. Tiesa, teko atsisakyti vonios indo, vietoj jo už plytelėmis išklijuotos pertvaros įrengta dušo kabina, o ant pertvaros dar sumontuotas higieninis dušas.
„Šioje patalpoje reikėjo sudėtingų techninių sprendimų, – pasakojo T. Mirošničenko. – Čia jau buvo įrengtos šildomosios grindys. Kad galėtume grindyse sumontuoti modernų dušo lataką, reikėjo atsargiai, stengiantis nepažeisti šildymo kanalų, išardyti dalį grindų betono. Nustatant kanalų vietą, teko pasinaudoti specialiu detektoriumi“.
Sanitarinio mazgo palubėje kabo rekuperatorius, tad ir lubas, siekiant išsaugoti kuo daugiau erdvės, teko daryti dviejų lygių. Čia vienintelė vieta bute, kur jos įrengtos iš gipskartonio. Likusiose patalpose naudotos matinės įtempiamosios lubos, „suvalgančios“ minimaliai aukščio – vos 5 centimetrus.
Siekiant butui suteikti lengvumo ir erdvumo, didžioji dalis baldų pagaminti baltos spalvos, o sienos išdažytos valymui atspariais šviesių atspalvių dažais. Hole erdvę vizualiai padidina veidrodis per visą drabužių spintos šoną nuo grindų iki pat lubų. Jį galima pakreipti, kaip gyventojui patogu.

Ramaus klasikinio dizaino butas, visiškai įrengtas per du su pusę mėnesio, turi vieną išskirtinę savybę, savotišką eksperimentinį bruožą. Savininkė nusprendė jį ne tik įrengti bei apstatyti baldais, bet ir pabaigti iki menkiausių detalių: užuolaidų, sofos pagalvėlių, indų, rankšluosčių ir kambarinių šlepečių. Nuomininkui tereikia įžengti tik su lagaminu.


































